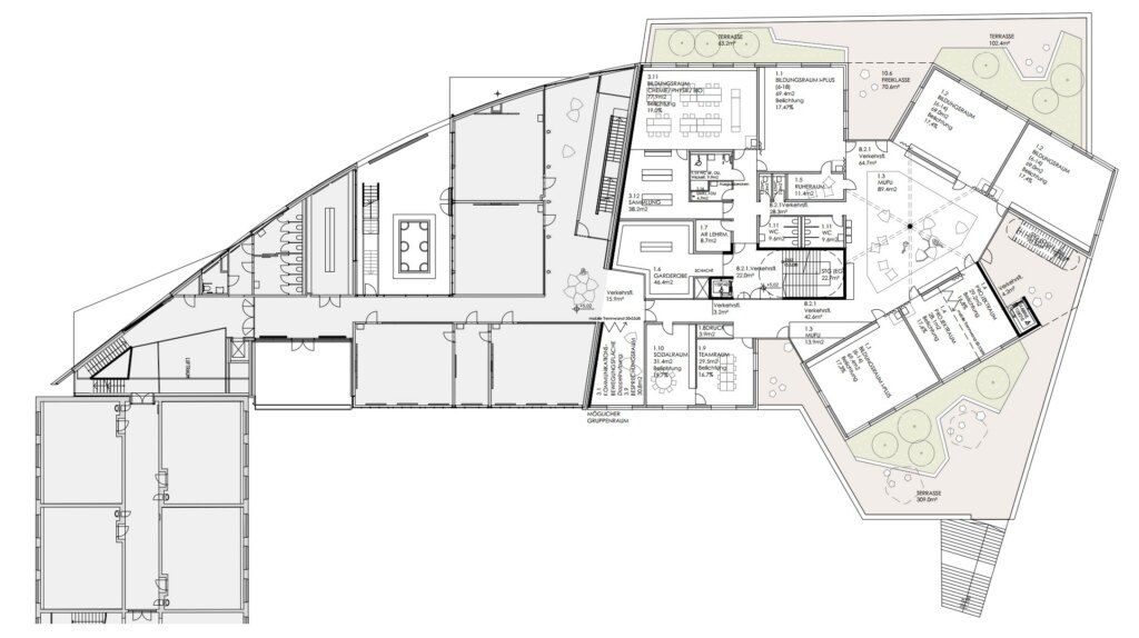
Die bestehende Schule von NMPB Architekten aus dem Jahr 2012
wird um 12 Klassen auf insgesamt 29 Klassen erweitert.
DER ZUbau wird als Holz-Hybrid Bauweise mit dunkler Holzfassade realisiert.
Zusammenarbeit mit Maurer und Partner Architekten
Fertigstellung:Herbst 2026






Du musst angemeldet sein, um einen Kommentar abzugeben.